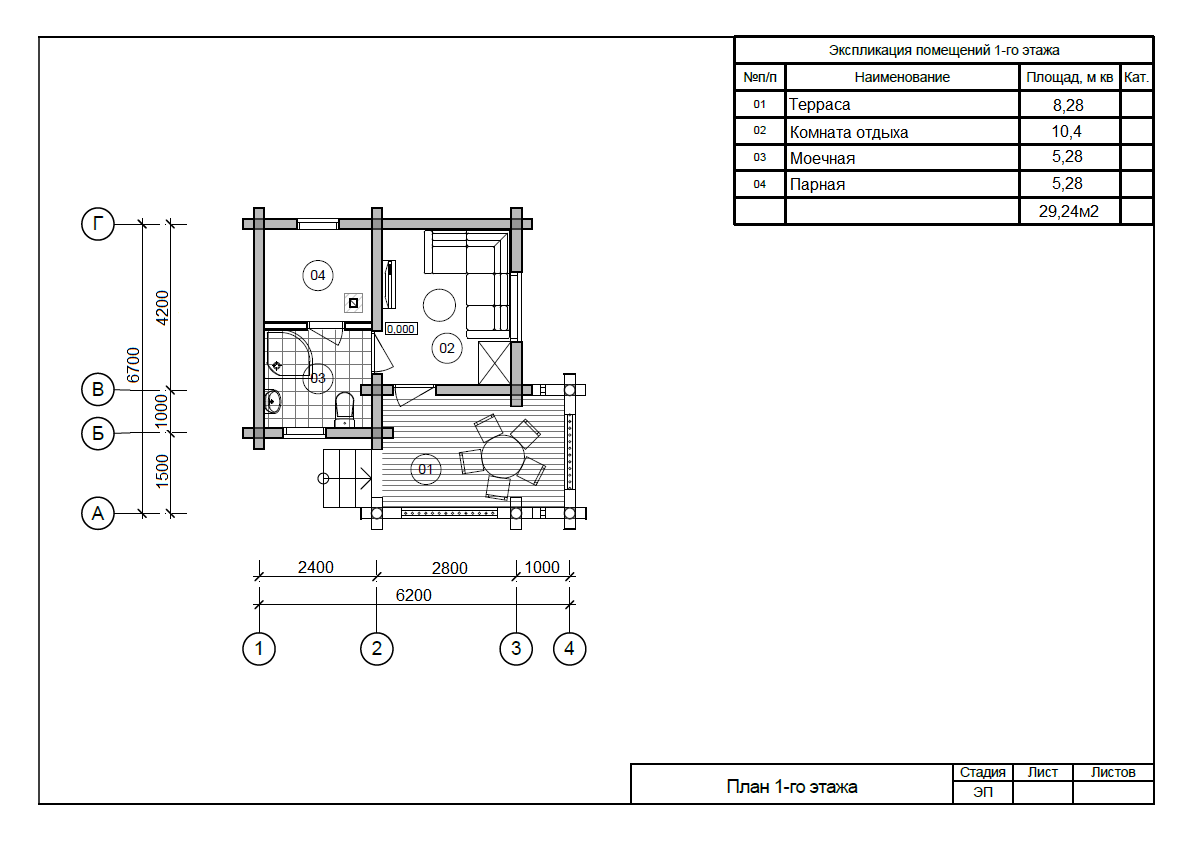
Площадь бани по наружному контуру стен – 36,36м2
В конструктив входит:
- Коробка бани из оцилиндрованного бревна Ø200мм, с несущими перегородками
- Кровля металлочерепица
Цена: от 25 000 рублей/м²
Фундамент
Винтовые сваи: 108*3,0м – 14шт.
Понравился проект? Хотите такой дом?
Заказать звонок
