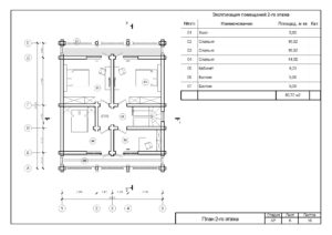
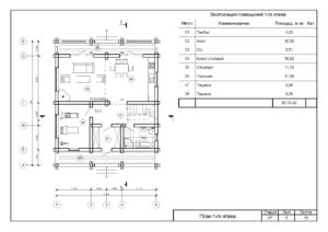
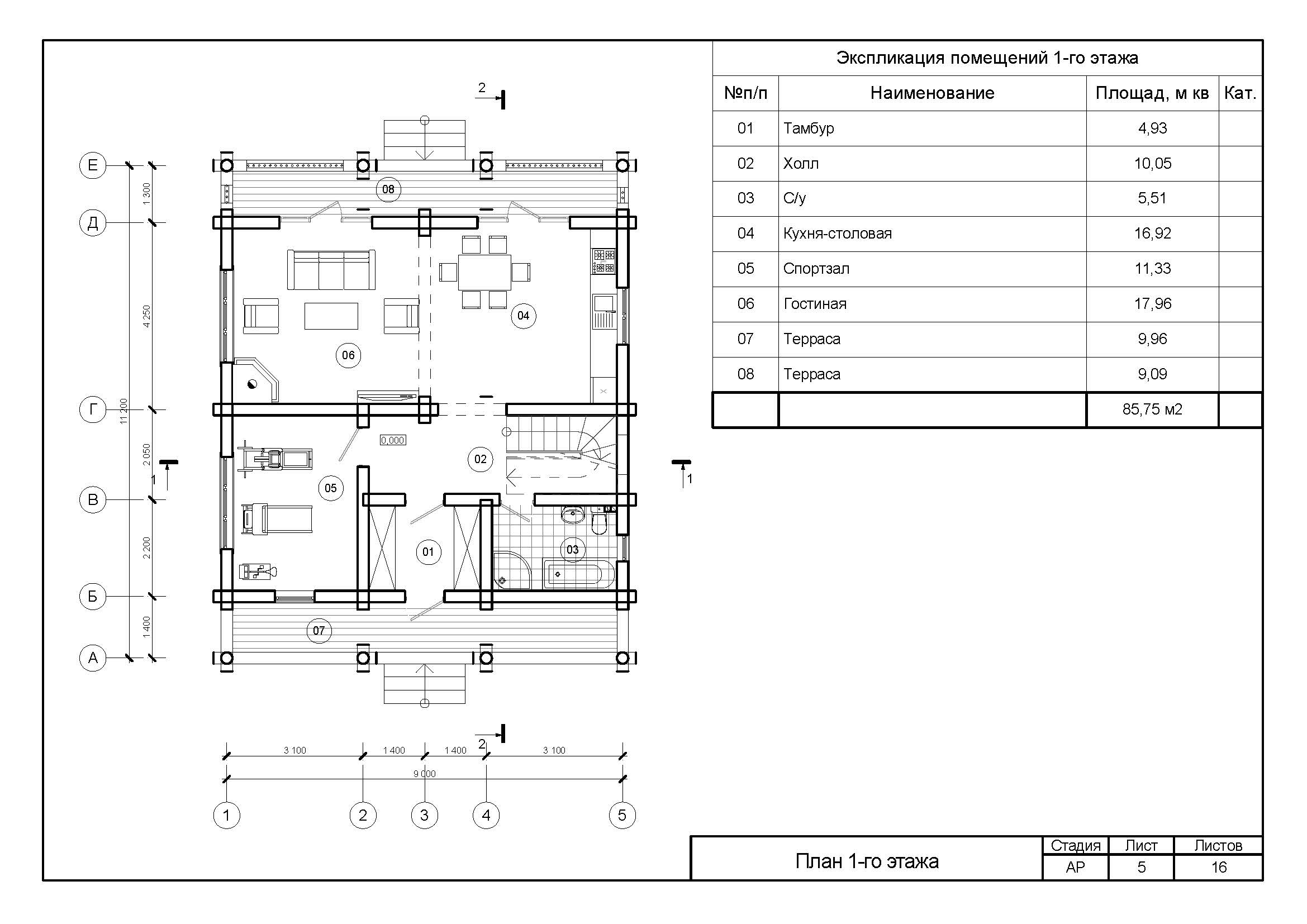
Площадь дома по наружному контуру стен + площадь второго этажа – 186,8м2
В конструктив входит:
- Коробка дома из оцилиндрованного бревна Ø260мм, с перегородками
- Кровля металлочерепица
Цена: от 25 000 рублей/м²
Фундамент
Винтовые сваи 133*3,0м – 36шт.
Понравился проект? Хотите такой дом?
Заказать звонок
