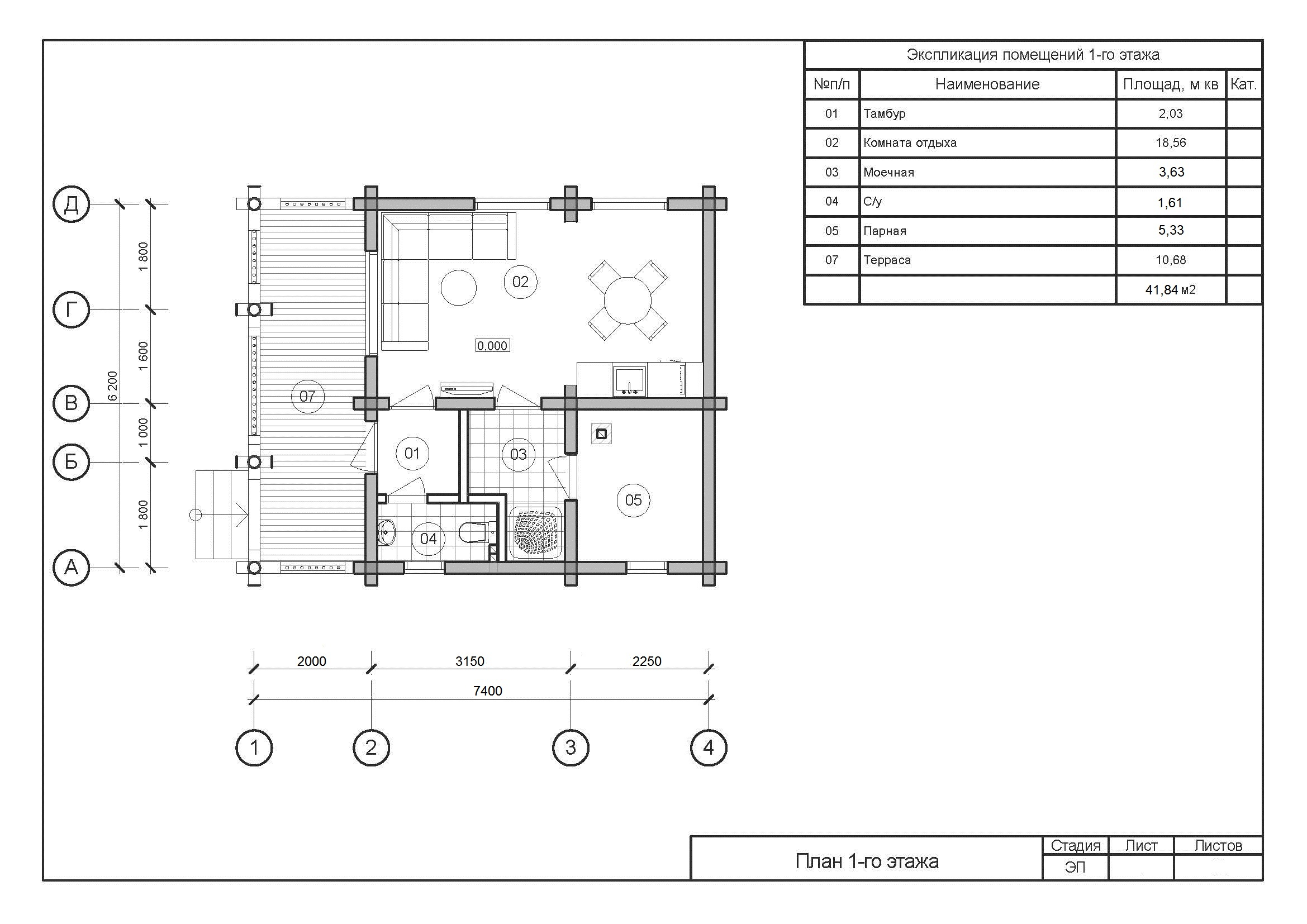
Площадь бани по наружному контуру стен – 52,48м2
В конструктив входит:
- Коробка бани из оцилиндрованного бревна Ø200мм, с несущими перегородками, балки переркрытия
- Кровля металлочерепица
Цена: от 25 000 рублей/м²
Фундамент
Винтовые сваи 108*3,0м – 23шт.
Понравился проект? Хотите такой дом?
Заказать звонок
