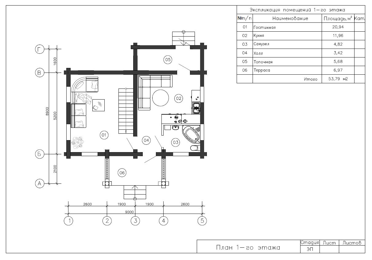
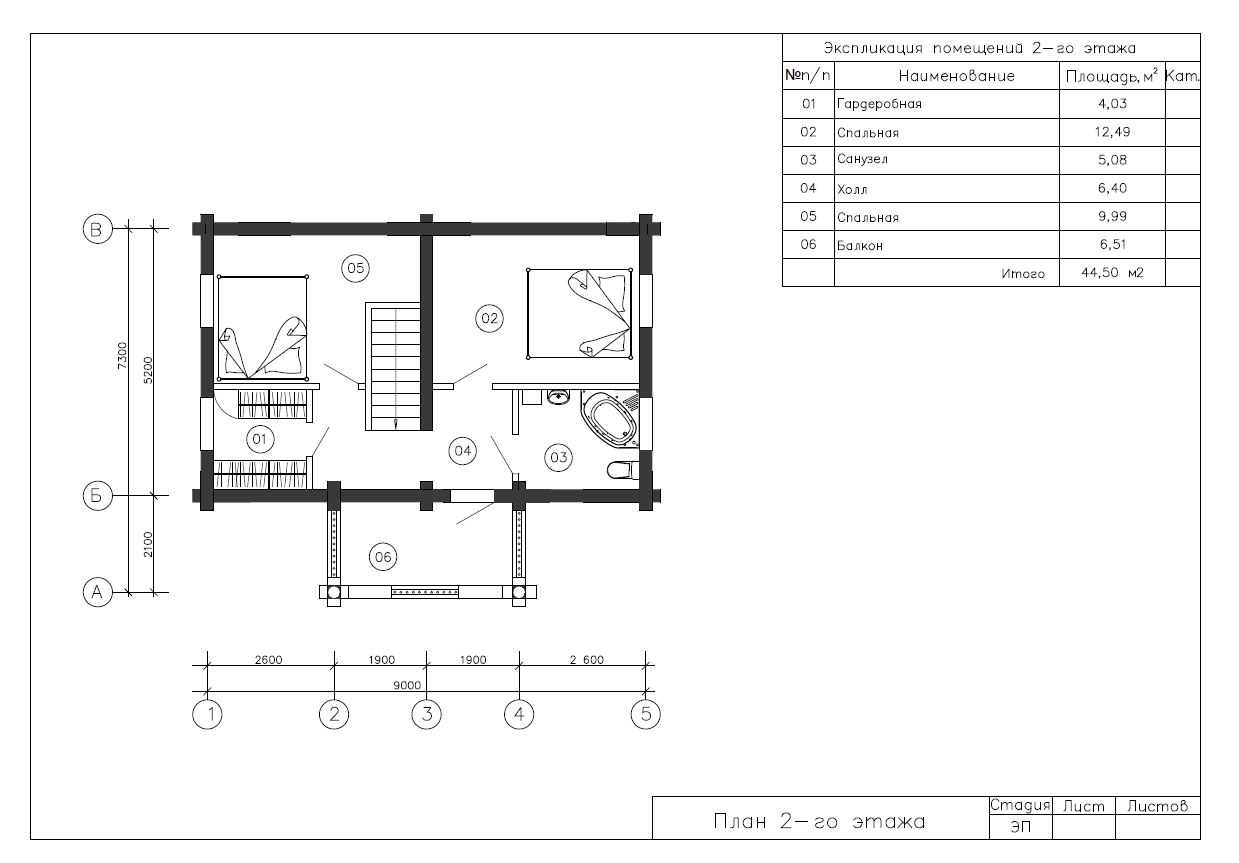
Площадь дома по наружному контуру стен + площадь второго этажа – 114,91м2
В конструктив входит
- Коробка дома из оцилиндрованного бревна Ø260мм, с несущими перегородками
- Кровля металлочерепица.
Цена: от 25 000 рублей/м²
Фундамент
Винтовые сваи 133*3,0м – 25шт.
Понравился проект? Хотите такой дом?
Заказать звонок
