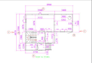
Площадь дома с мансардой – 91м2
Первый этаж полноценный, высотой 2,7м, второй этаж – мансарда, высотой 2,5м. К дому пристроено помещение котельной и бойлерной со своим входом.
В конструктив входит:
- Полы, стены и крыша сделаны из СИП-панелей, изготовленных на заводе.
Цена домокомплекта: от 29 000 рублей/м²
Фундамент
Свайно-винтовой
Понравился проект? Хотите такой дом?
Заказать звонок
