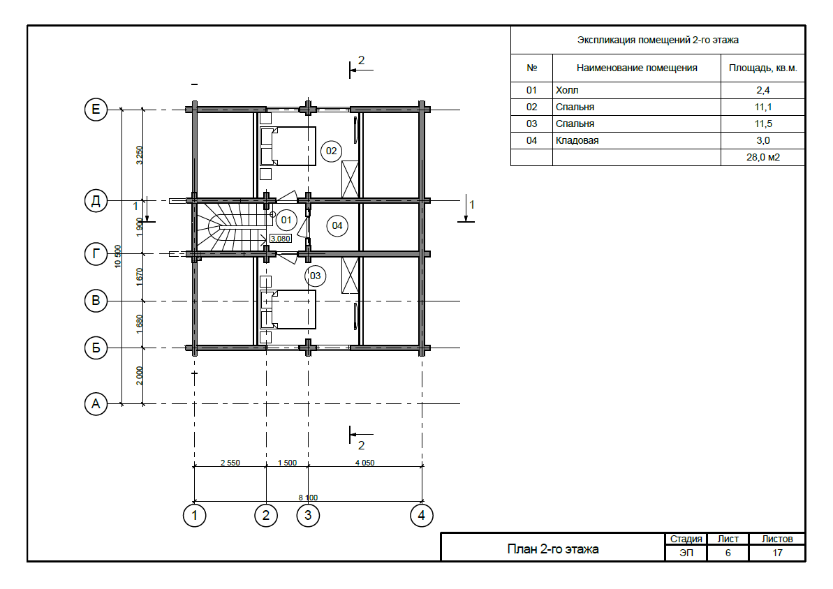
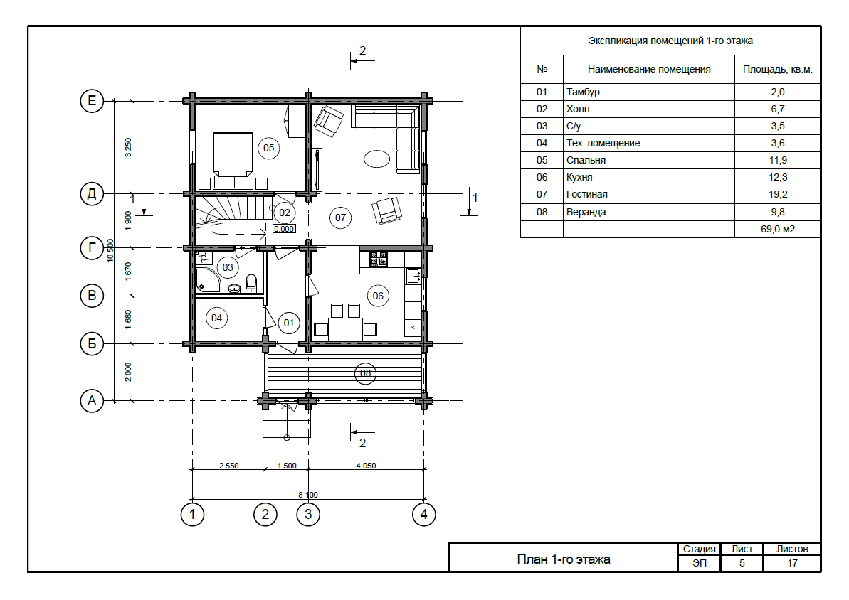
Площадь дома по наружному контуру стен + площадь второго этажа – 111,33м2
В конструктив входит:
- Коробка дома из бруса 180х180, с несущими перегородками, и балками 100х180
- Кровля металлочерепица
Цена: от 25 000 рублей/м²
Фундамент
Винтовые сваи: 108*3,0м – 31шт.
Понравился проект? Хотите такой дом?
Заказать звонок
