
Наши навесы создают укрытие от непогоды и обеспечивают тень – для вас и вашей собственности (мебели, садового инвентаря, автомобиля, бассейна, крыльца). Способны расширить жилую площадь и помочь в обустройстве зоны отдыха, например, если сделать под навесом веранду или террасу; добавляют конфиденциальности – могут укрыть от любопытных глаз снаружи участка. Имеют привлекательный внешний вид, долговечны.
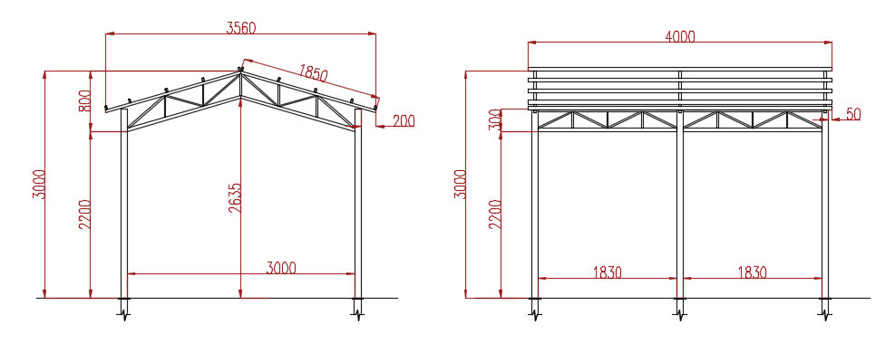
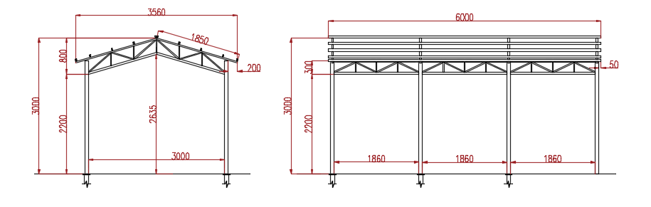
Навес металлический двухскатный
3000х4000х3000(Н), 3000х6000х3000(Н).
От 227 000 руб. (под ключ)
В качестве основания навеса используют сваи или бетонное основание. Каркас навеса изготавливается из профильной трубы. Кровля состоит из двух отдельных полотен, соединенных под углом. Скаты могут иметь произвольную форму, отличаться размерами. В качестве покрытия кровли используют поликарбонат либо проф. лист. Примеры навесов приведены ниже. Так же изготовим навесы по вашим индивидуальным размерам и проектам.




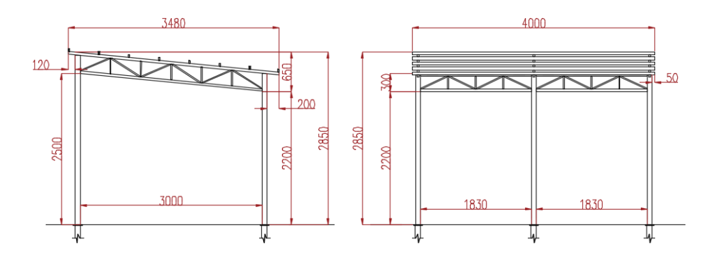
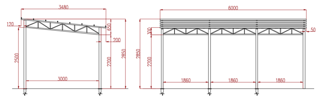
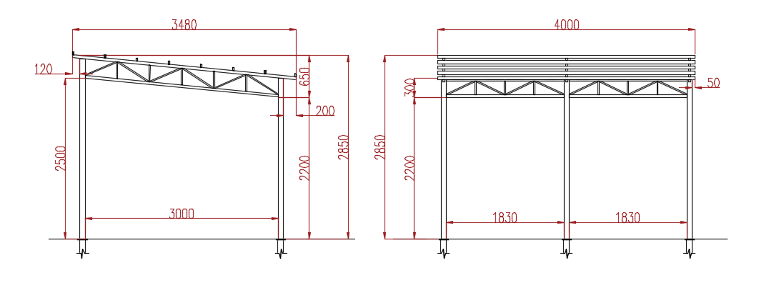
Навес металлический односкатный
3000х4000х2850(Н) , 3000х6000х2850(Н)
От 215 800 руб. (под ключ)
В качестве основания навеса используют сваи или бетонное основание. Каркас навеса изготавливается из профильной трубы. Кровля состоит из одного полотна. Скат кровли можем сделать любой высоты. В качестве покрытия кровли используют поликарбонат либо проф. лист. Примеры навесов приведены ниже. Так же изготовим навесы по вашим индивидуальным размерам и проектам.




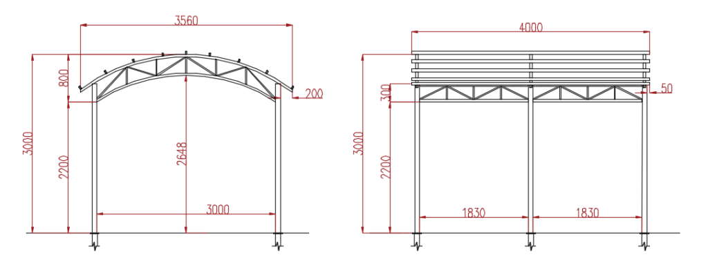
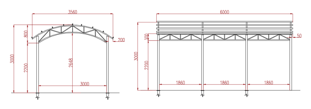
Навес металлический арочный
3000х4000х3000(Н) , 3000х6000х3000(Н)
От 223 000 руб. (под ключ)
В качестве основания навеса используют сваи или бетонное основание. Каркас навеса изготавливается из профильной трубы. Кровля состоит из одного изогнутого полотна. В качестве покрытия кровли используют поликарбонат. Примеры навесов приведены ниже. Так же изготовим навесы по вашим индивидуальным размерам и проектам.




